Three Phoenixville Housing Construction Projects would add over 440 Residential Units in the Borough!

RE/MAX Achievers 2 Offices in Collegeville & Pottstown Offering Real Estate Services
RE/MAX Achievers 2 Offices in Collegeville & Pottstown Offering Real Estate Services
Published on February 2, 2026

Station Hill Subdivision (proposed)

Officials in Phoenixville are reviewing a proposed residential development that would add 14 new homes to the borough’s north side, reigniting familiar discussions about traffic, housing density, affordability, and the evolving character of a historic area.

The plan calls for 14 twin homes to be built at the southeastern and southwestern corners of Vanderslice Street and Gay Street, adjacent to the Gay Street Bridge. The project is being advanced by Audubon Land Development Corp., a firm responsible for several redevelopment efforts in the surrounding region. The company also recently purchased the historic St. Gabriel’s Hall in Audubon for $14.5 million last fall.

Known as the Station Hill Subdivision, the proposal remains in its preliminary stages and has been under review by the borough’s Planning Commission since October. Current plans indicate that all 14 units would front Vanderslice Street and include a front porch, garage, and driveway, providing three parking spaces per home.

While detailed plans have not yet been released publicly, the developer has stated that the project would include new stormwater management infrastructure, lighting, and landscaping improvements. The development would span approximately 2.73 acres.

Reaction from nearby residents has been mixed, with some expressing strong opposition. One resident commented on the popular Phoenixville, PA History by Vincent Martino Jr. page that the borough has shifted from revitalization to overdevelopment, describing the town as “ugly and unrecognizable” and more of a “weekend playground for Philly.” Another resident raised concerns about wildlife displacement, noting sadness over the potential loss of animals living in the wooded area. Others questioned the strain on aging infrastructure, particularly local roads, and called for greater protection of open space.

The final cost of the proposed homes has not yet been disclosed. The Planning Commission is expected to continue deliberations on the project at an upcoming public meeting.

Major Amendment Submitted: Odessa Development at 1270 Fillmore Street and 918 Township Line Road (approved)

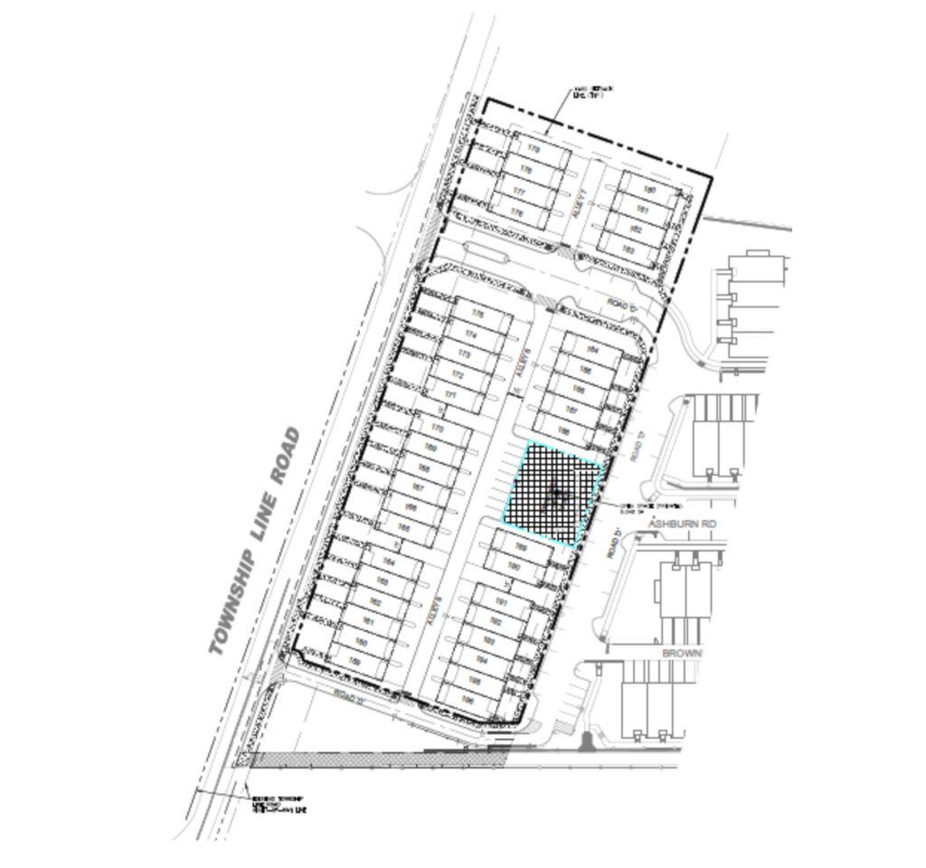
A major amendment was recently submitted to Phoenixville’s Planning Commision for The Odessa Development at 1270 Fillmore Street and 918 Township Line Road. This is a major mixed-use residential project in Phoenixville, Pennsylvania that has been approved by the Phoenixville Borough Council and is moving forward through the land-development process. The approximately 14-acre site is planned to include a combination of multi-family housing and townhomes along with supporting infrastructure and amenities within a Mixed-Use Growth District. Originally envisioned to include four 3–4 story apartment buildings and internal roads, the plan has been revised to now propose construction of a three- to four-story apartment building and around 182 stacked townhouses, along with all associated grading, stormwater management, utilities, landscaping and lighting.

(Original Approved Plan)

In more detailed planning, the project has been described as consisting of a 224-unit apartment building with commercial or amenity space on the first floor and a parking garage, together with stacked townhome structures that bring the total to roughly 390 residential units. The development also includes surface and street parking spaces, though some earlier elements such as a road connection to adjacent neighborhoods were removed from the final plan in response to community concerns about traffic.

The development is being advanced by Franklin Phoenixville, LP, and reflects Phoenixville’s efforts to increase housing supply and create a denser, transit-accessible neighborhood along Fillmore Street near the Schuylkill River Trail, blending residential uses with street-level activity and improved public infrastructure.

The Amendment under Review submitted as of 1/13/2026:

  • New Traffic Flow: The amendment replaces the previously planned connection to Ashburn Road with a new circulation pattern.
  • Regional Connection: The site will now connect at its northern end to a newly proposed development along Township Line Road, which ultimately links to Gauge Street in East Pikeland Township.
  • Updated Residential Mix: Final plans now detail a three to four-story apartment building (224 units) with a 351-space parking garage and ground-floor commercial space, plus 166 stacked townhomes. 

Expected Completion

While construction began in late 2025, the full project timeline has been extended due to the scale of the infrastructure needed: 

  • Phased Completion: Given the borough’s estimate that the dedicated emergency access road (Ashburn Road) will take approximately one year to finish, the first residential units are not expected to be ready for occupancy until late 2026 or early 2027.
  • Infrastructure Deadlines: Borough capital projects supporting this area, such as Phase 2 of the Paradise Street improvements, are scheduled to begin construction throughout 2026. 

Township Line Road Townhouse Development in Phoenixville, PA (proposed)

A proposed development calls for the construction of thirty-nine (39) townhouses integrated with both private and public open spaces. The project is designed as a lower-density residential component that will function in coordination with the much larger Odessa mixed-use development, which has already received borough approvals.

The townhouse project will consist of attached residential units arranged to provide shared green space, internal pedestrian circulation, and landscaped buffers. Public open space areas are intended to connect visually and physically with surrounding neighborhoods, while private outdoor areas would be reserved for residents. This design aligns with Phoenixville’s broader planning goals of increasing housing supply while incorporating walkability and preserved open areas in growth districts.

A key element of the proposal involves reconfiguring roadway access. The plan includes relocating the primary western access road so that it connects directly into the Odessa Development’s internal road network, rather than creating a new standalone access point. This change is intended to consolidate traffic movements, reduce redundant curb cuts along Township Line Road, and improve overall circulation for residents, visitors, and emergency vehicles. The revised access strategy reflects earlier community concerns about traffic impacts and neighborhood cut-through traffic in this area.

From a planning perspective, the Township Line Road townhouses represent a transition zone between larger mixed-use density and nearby residential neighborhoods. Borough officials have indicated that such developments are intended to add housing variety while limiting large-scale traffic or infrastructure expansion beyond what has already been approved for Odessa.

As of the most recent publicly available information, the project remains part of Phoenixville’s ongoing land-development review process, with final details subject to borough approvals, engineering review, and potential conditions related to traffic, stormwater management, and open-space dedication.

Phoenixville Borough Statistics
Phoenixville Borough has experienced population growth in recent years, with an estimated population of about 20,286 as of mid-2024. The community has a relatively young median age of around 35 years, reflecting a mix of young professionals, families, and older adults, with roughly 19.1 percent of residents under 18 and about 12.8 percent aged 65 or older. The borough includes approximately 8,700 to 8,900 households, with an average household size of about 2.15 to 2.2 people. Median household income is estimated between $94,000 and $97,000, while per capita income is roughly $53,000, indicating a generally middle- to upper-middle-income population. Educational attainment levels are high, with more than 94 percent of adults holding a high school diploma and over half earning a bachelor’s degree or higher. The average commute time for residents is approximately 26 minutes. Housing in Phoenixville is a mix of owner-occupied and rental units, supported by a walkable downtown with access to shops, restaurants, and community amenities.

Phoenixville is well positioned within the regional transportation network and is served by several key state highways. Pennsylvania Route 23 runs through the borough, connecting Phoenixville northwest to Elverson and southeast to King of Prussia. Pennsylvania Route 113 provides a link southwest to Downingtown and northeast to Trappe, while Pennsylvania Route 29 connects the borough southwest to Malvern and northeast to Collegeville. Just outside the borough, Pennsylvania Route 724 offers access toward Pottstown. These routes provide convenient connections to major employment centers and regional roadways.

The borough is located near several larger towns and population centers, making it attractive for commuters. Nearby communities include King of Prussia, Norristown, Pottstown, and West Chester, all within a short driving distance. Smaller neighboring communities such as Mont Clare, Port Providence, Charlestown, and Kimberton border or lie close to Phoenixville. Philadelphia is approximately 20 to 25 miles to the southeast, placing the borough within the greater Philadelphia metropolitan region.

Contact Us!

Contact our offices in Pottstown or Collegeville!

Collegeville: 610-489-5900

Pottstown: 610-326-1200

OR through our social media pages!

Facebook and Instagram at “REMAXAchieversAgentsinPA”

Instagram:

https://www.instagram.com/remaxachieversagentsinpa?utm_source=ig_web_button_share_sheet&igsh=eWIzM2RpYW0zYmx2

Facebook:

https://www.facebook.com/SouthEasternPARealEstateSalesAgents

Want to know the value of your property?
Our staff will figure it out for you for FREE.

Let's Talk Real Estate!

chat_bubble
close
label_importantlabel_importantGet A FREE Home Valuation!
LET'S DO IT!